Илья П.
Паспорт проверен
Работает по договору
Илья П.
Москва
 · В сети 12 ч. назад
Выполняю работы по проектированию водоснабжения и водоотведения уже более 5 лет. Перечень выполняемых работ: • Технология наружных сетей и сооружений хоз-бытовой, дождевой канализации. (К1,К2) • Технология наружных сетей и сооружений водоснабжения для питьевых, противопожарных, производственных нужд. (В1,В2) Имеется опыт проектирования жилых, общественных и производственных зданий, выполнял работы на следующих объектах: - Объект культурного наследия федерального значения «Зеленый театр» (разработка научно-проектной документации для проведения ремонтно-реставрационных работ); - Парк Будущего (снятие замечаний МГЭ по разделу наружного водопровода В1); - ФУД СИТИ(переустройство дождевой канализации по объекту: Многоуровневая транспортная развязка с прилегающей улично-дорожной сетью - Склады и сортировочные центры Wildberries (хоз-питьевой водопровод, противопожарный водопровод, хоз-бытовая канализация, дождевая канализация с кровли); - Дилерский центр (д.Коледино); - Переустройство дождевой канализации. - А также проектирование сетей в частных секторах. Согласование проектов с организациями: АО МВК, ГУП Мосводосток, ПАО МОЭСК и т.д. Опыт прохождения региональных экспертиз. В профиль
схема земельного участка (спозу), границы земельного участка под мкд, участок, страница с текстом, план
чертеж дымового и вентканала в стене, ввод теплосети в здание чертеж, чертеж узла, лист с узлами чертежи, серия 1.459-2 стальные лестницы переходные площадки и ограждения
участок, многоконтурный земельный участок, границы участка, площадь участка, схема разбивки земельного участка
схема согласования инженерных сетей, страница с текстом, наружные сети газоснабжения чертеж, ситуационный план прокладки газопровода чертеж, схема проекта
чертеж, планировка территории, проект межевания, план, проект межевания территории
продольный профиль газопровода, продольный профиль наружного водопровода в1, продольный профиль водопровода, продольный профиль, профиль газопровода
чертеж канализационного смотрового колодца, устройство канализационного колодца, схема установки канализационного колодца, канализационный колодец чертеж, колодец канализационный
Проектирование наружных сетей водоснабжения Прокладка хоз-питьевого и противопожарного водопровода.(г.Тула) Вынос сетей водопровода В1(г. Москва, ВДНХ)
Ещё 1 услуга
Игорь Субботин
Паспорт проверен
Работает по договору
Игорь Субботин
Москва и Московская область
 · В сети 3 д. назад
Меня зовут Игорь, живу в Москве, учился на проектировщика в МГУП Разработал более 300 проектов, по инженерным системам зданий, проходил государственные и не государственные экспертизы. Регулярно участвую в авторских надзорах и пусконаладках. Объекты проектирования от квартир до торговых центров. Разработка стадий П, РП, Р. Опыт работы более 12 лет. Варианты сотрудничества: частичная занятость, разовая работа, без оформления, удаленная работа. Возможна работа по договору с безналичным расчётом, СРО. В профиль
С детства мне всегда было интересно, как делаются вещи, особенно механические игрушки; почему нельзя прикасаться к горячему чайнику; или почему, когда снаружи холодно, внутри все еще тепло; почему так много разных труб и вода течет из крана, горячая или холодная; почему радиатор под окном зимой горячий, а летом холодный. В школе мой самый большой интерес всегда был к науке, к множеству различных процессов, наблюдаемых в ходе физических и химических лабораторных экспериментов. В старших классах я начал зарабатывать немного карманных денег, работая на стройках, сам все видел, анализировал и изучал детали. Известные и уважаемые коллеги также повлияли на мой выбор профессии. Почему я хочу работать в сфере проектирования, строительства и инфраструктуры MEP-систем? Каждый объект обладает своей индивидуальностью и уникальностью, сложностью и визуализацией архитектурных, конструктивных и инженерных систем. Каждый объект обладает своей индивидуальностью и уникальностью, сложностью и визуализацией архитектурных, конструктивных и инженерных систем. В каждом объекте я вижу сложные и в то же время простые и стандартные решения. Например, завод по производству пластмасс будет отличаться от молочной фабрики. Мыслительная работа добровольно начинается в моей голове, приводя в конечном итоге к высокому стандартному результату, удовлетворяющему всем нормам и правилам. Качество проекта в значительной степени зависит не только от ведущего человека, но и от команды, которую им удалось собрать, где у каждого человека есть свой характер и определенные знания, которые необходимо сочетать со знаниями другого человека в той же команде. Команда - это как вторая семья. Как инженер, я полностью независим в принятии решений, особенно при взаимодействии внутри команды. Когда я управляю проектом, например, имея 15 подчиненных, тогда я всегда буду слушать всех, кто принимает участие в проекте, а затем вместе, именно вместе мы выполним поставленную задачу. Каждый лидер должен обладать следующими качествами: ответственность, креативность, внимание и умение работать в команде. Я человек, полный энергии и стрессоустойчивый. Моя работа и работа моей команды заключается в том, чтобы каждый человек в здании, которое мы строим, чувствовал себя комфортно и безопасно. Выполняю следующий перечень работ : 1. Сбор начальных данных. 2. Консультации Заказчика. 3. Составление Технического задания. 4. Согласование План-графика. 5. Самостоятельная разработка Эскизных проектов (ОВ, ВК, ЭОМ) 6. Согласование Эскизных проектов с Заказчиком и смежниками. 7. Выдача заданий проектировщикам. 8. Контроль работы проектировщиков. Получение заданий от смежных разделов. 9. Организация выездов на объект. 10. Организация и проведение совещаний с проектировщиками. В портфолио около 1000 объектов. Да, квартиры тоже считаются за полноценный объект :-) т.к бывают очень не простые заказчики.
Проектирование отопления и водоснабжения
Проектирование отопления и водоснабжения
Проектирование отопления и водоснабжения
Проектирование отопления и водоснабжения
Проектирование отопления и водоснабжения
Проектирование отопления и водоснабжения
Проектирование отопления и водоснабжения
Проектирование отопления и водоснабжения
Проектирование отопления и водоснабжения
Проектирование отопления и водоснабжения
исполнительно-техническая документация, проектная документация, ведение технической документации. ведение технической документации., страница с текстом, текст
символ, экран под ванну откидной 150 метакам, вентиляционная установка, техника, блок-модуль бов 12х3 м планировка
общие указания к проекту, пример проекта, страница с текстом, общие данные, общие указания в проекте дымоудаления
тепломеханическая схема котельной, схема котельной, схема котельной установки, котельная схема, тепловая схема котельной
размер комнаты для котельной с газовым котлом в частном доме, проект котельной, проект котельной для частного дома, котельная частного дома, размер котельной в частном доме 200 кв м для газового котла
коллектор отопления распределительный схема подключения, обвязка котельной 120 квт схема подключения, схема обвязки газовой котельной на 200 квт, схема котельной, проектирование отопления
схема котельной, проект котельной, схема монтажа котельной в частном доме с газовым котлом, котельная схема, котельная в частном доме газовая своими руками схема
схема котельной, инженерные системы котельной схема, проектирование котельной, устройство котельной, проект котельной
схема котельной, проект котельной, инженерные системы котельной схема, монтаж котельной, котельная схема
образец спецификации, лист спецификации, спецификация, спецификация проекта отопления пример, спецификация материалов
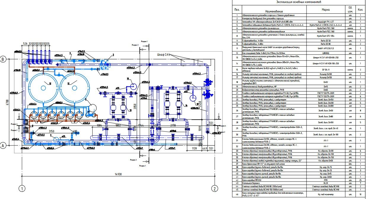
спецификация, таблица, образец сметы, спецификация оборудования и материалов для скс, спецификация оборудования
схема системы отопления, проектирование отопления, проект отопления, схема отопления, тупиковая система отопления схема
Проектирование вентиляции и кондиционирования
Проектирование вентиляции и кондиционирования
Проектирование вентиляции и кондиционирования
Проектирование вентиляции и кондиционирования
Проектирование вентиляции и кондиционирования
Проектирование вентиляции и кондиционирования
Проектирование электросетей
Проектирование электросетей
Проектирование электросетей
Проектирование электросетей
Проектирование электросетей
Проектирование электросетей
Проектирование электросетей
Проектирование электросетей
Проектирование электросетей
Проектирование электросетей
системы вентиляции, проектирование систем вентиляции, проектирование вентиляции, проект вентиляции, чертеж
пристенный дренаж фундамента схема, дренаж фундамента, поверхностный дренаж, конструкция пристенного дренажа фундамента, пристенный дренаж
правила установки газового котла, схема установки счетчика газового котла в квартире, устройство внутреннего пожаротушения роса, требования к котельной в частном доме для газа, нормы установки газового котла
системы водоснабжения, проект водоснабжения, инженерные системы, инженерные сети, проектирование систем отопления
проект холодоснабжения склада принципиальная схема, венткамера проект, пг на проекте, проект водоснабжения, проект вентиляции
разрез итп, план цеха, схема проект здания цтп, проект холодоснабжения склада принципиальная схема, проект отопительно производственной котельной
проект водоснабжения, схема водоснабжения и водоотведения частного дома образец, системы водоснабжения, котельная блок-модульной газовой установки 15х15м, проект водоснабжения и канализации
вентиляция котельной, проект вентиляции, проект водоснабжения, чертёж помещения котельной, проект котельной
чертеж, проект водоснабжения, схемы насосной водоснабжения чертеж, сборочный чертеж, водоснабжение схема
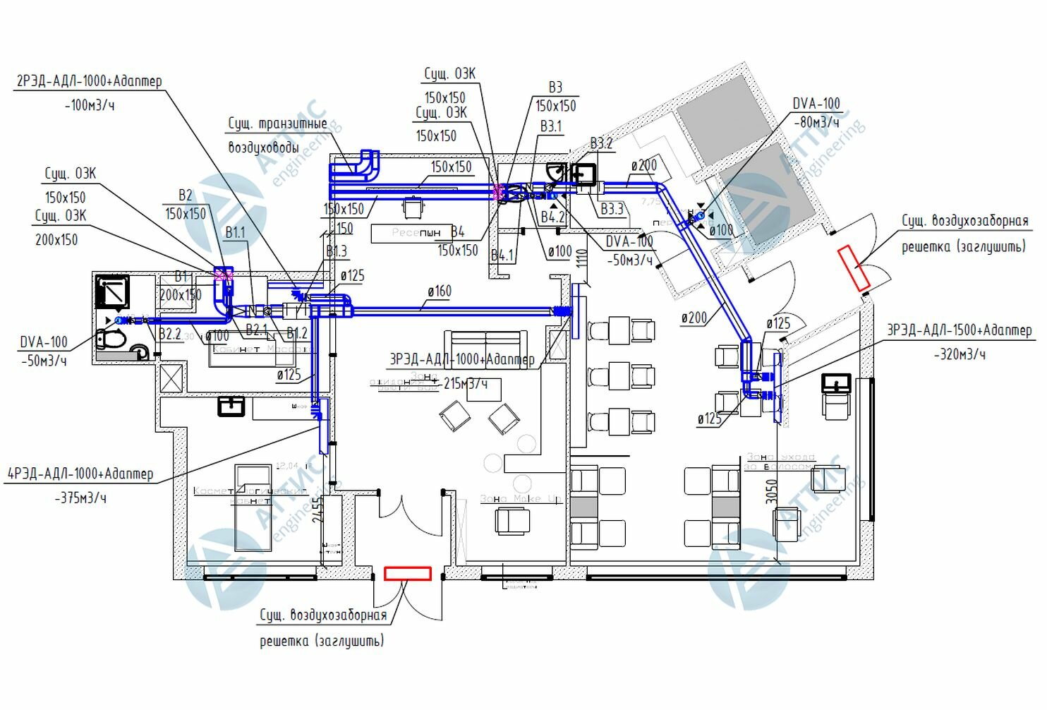
вентиляция на плане, проектирование вентиляции, проект вентиляции, проектирование систем вентиляции, схема вытяжной вентиляции общепита схема
компоновка котельного цеха чертеж, монтажный чертеж цех производства мороженого, план цеха по производству мороженого, план цеха, план производственного участка завода
схемы насосной водоснабжения чертеж, сборочный чертеж, аксонометрическая схема насосной станции пожаротушения, чертеж, системы водоснабжения
схема насосной станции 2 подъема, проект холодоснабжения склада принципиальная схема, проект водоснабжения, проектирование чертежи систем вентиляции, план водоснабжения
проект электрики, проект электроснабжения, план сети освещения, план электропроводки, план монтажа
Проектирование систем безопасности
Проектирование систем безопасности
Проектирование систем безопасности
Проектирование систем безопасности
Проектирование систем безопасности
Проектирование систем безопасности
Проектирование систем безопасности
Проектирование систем безопасности
Проектирование систем безопасности
проектирование вентиляции, проектирование приточно-вытяжной вентиляции, проектирование систем вентиляции, системы вентиляции, расчет вентиляции
проект вентиляции, проект отопления, план вентиляции, проект водоснабжения, проектирование вентиляции
план схема электропроводки в многоквартирном доме, проект электроснабжения, электроснабжение дома, проект электропроводки, электроснабжение частного дома
план расстановки мебели в квартире п-44, план расстановки мебели, дизайн проекты, дизайн проект квартиры, расстановка мебели в квартире
чертежи вентиляции и кондиционирования, дизайн проект план расстановки сантехнического оборудования, план монтажа, проект вентиляции, проектирование вентиляции
проектирование вентиляции, проект вентиляции, проектирование систем вентиляции, системы вентиляции, аксонометрия приточной вентиляции
проектирование вентиляции, проект вентиляции, аксонометрия канальный кондиционер, изометрическая схема вентиляции, инженерные сети
чертеж, фундаментный блок фл-10-12-2, сборочный чертеж, монтажная схема, фундаментная подушка фл 10.12 (нагр. 2,3,4)
профиль врезной fm1 22х7мм l-2000мм, шина потолочная двухрядная legrand стандартэ, профиль для светодиодной, линейный светильник lania 500/520мм комплект, светильник led линейный lania
узел крепления, узел крепления элементы крепления трубопроводов к перекрытию., крепление трубопроводов, схема прокладки волоконно-оптического кабеля, узел заземления трубопровода чертеж
ведомость рабочих чертежей основного комплекта ас, ведомость рабочих чертежей комплекта тх.а, ведомость рабочих чертежей интерьер, ведомость основных комплектов рабочих чертежей шифр, ведомость чертежей основного комплекта по диспетчеризации
страница с текстом, общие указания к проекту, пример проекта, общие данные, проектная документация
спецификация заполнения проемов ар, спецификация, спецификация элементов, спецификация жб элементов таблица гост, спецификация элементов заполнения проемов
проект котельной, проект отопления, проект водоснабжения, план помещения, проект электроснабжения
план электрики, проект вентиляции, проект электроснабжения, проект водоснабжения, план расстановки кондиционеров интерьер проекте
проектирование вентиляции, проект вентиляции, проект отопления, проект электроснабжения, проект электрики и отопления
чертеж, план электрики, план розеток, план расстановки мебели, планировочное решение и план расстановки мебели
план расстановки кондиционеров интерьер проекте, планировка, план расстановки мебели с экспликацией, планировочное решение и план расстановки мебели, план расстановки мебели чертеж
план расстановки мебели, план монтажа, планировка помещения, планировка, планировочное решение и план расстановки мебели
проектирование вентиляции, схема вентиляции, проект вентиляции, аксонометрическая схема вентиляции, проектирование систем вентиляции
аксонометрическая схема водопровода, аксонометрия кондиционирования, аксонометрическая схема системы вентиляции ве1, схема водопровода, схема системы вентиляции
аксонометрическая схема водопровода обозначения, проектирование вентиляции, аксонометрическая схема водоснабжения, схема водоснабжения панельного дома, аксонометрия горячего водоснабжения т3 т4
воротник на трубу дымохода, ленточный фундамент устройство, схема стекания ревизии из дымоходов, система антиобледенения скатной кровли и водостоков проект dwg, угол наклона трубы сливной ванна
проект вентиляции, план вентиляции, проектирование вентиляции, план приточно-вытяжной вентиляции, проект по вентиляции
проектирование вентиляции, проект вентиляции, проектирование систем вентиляции, вентиляция монтаж, системы вентиляции
план торгового центра чертежи, планировка, страница с текстом, план, планировка офиса
проект вентиляции, план вентиляции, проектирование вентиляции, кладочный план, проект вентиляции чертеж
стройгенплан ппр на высоте, бетононасос, план, чертеж, разбивочный план
проект котельной, проект водоснабжения, проект, страница с текстом, модульное здание абк чертеж
насосная станция перекачки типовой чертеж, план насосной станции 2 подъема чертеж, разрез промышленного здания, проект, разрез производственного здания
схема водоснабжения и водоотведения, схема водоснабжения и водоотведения города, исполнительная схема трубопровода водоснабжения, схема теплоснабжения, схема водоснабжения
страница с текстом, спецификация, спецификация для монтажа теплого пола, спецификация проекта отопления пример, спецификация оборудования системы водопровода
проект водоснабжения, проект наружной канализации частного дома, проект отопления, схема канализации, проектирование вентиляции
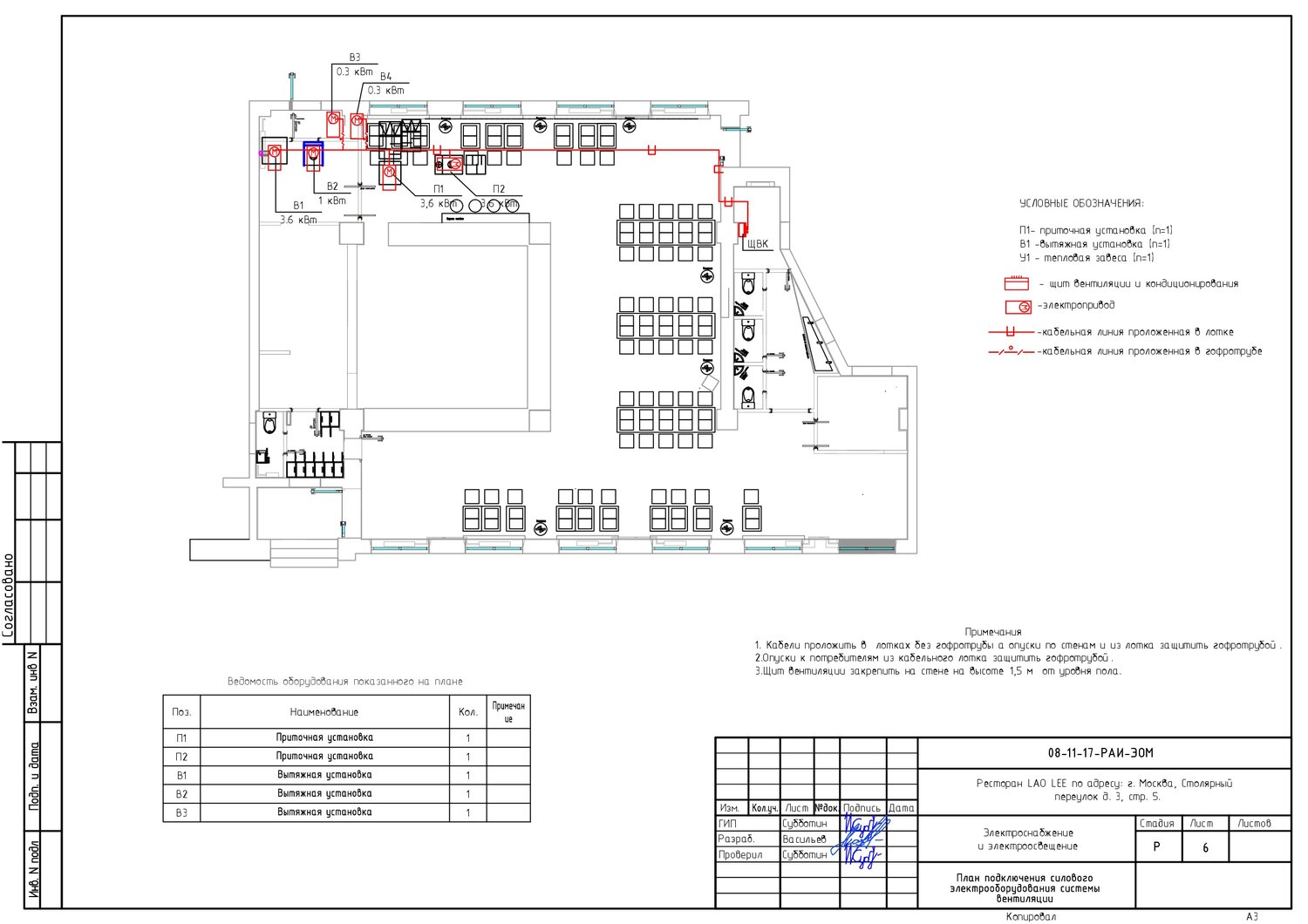
экспликация помещений, экспликация нежилого помещения образец, условные обозначения зданий, условные обозначения, условные обозначения генплана
спецификация электрооборудования образец, спецификация, спецификация на материалы к смете, спецификация оборудования, спецификация электрооборудования слаботочка
проектирование приточно-вытяжной вентиляции, проектирование систем вентиляции, проект вентиляции, системы вентиляции, проектирование вентиляции
рекуператор воздуха turkov, приточно вытяжная установка, агрегат вентиляционный приточно-вытяжной с рекуперацией тепла, turkov — система вентиляции с рекуперацией, вентиляционная установка turkov zenit-1200 heco
план вентиляции, проектирование вентиляции, проект вентиляции, вентиляция коттеджа пример проекта, план кондиционирования в дизайн проекте
разбивочный чертеж, дренаж участка схема, разбивочный план, пример проекта, проект
схема системы вентиляции, монтажная схема системы вентиляции, системы вентиляции, аксонометрическая схема вентиляции, проектирование вентиляции
скважинный насос схема монтажа скважины, подключение скважинного насоса, схема подключения погружного насоса эцв, электрическая схема подключения скважинного насоса, монтаж скважинного насоса
электроснабжение, проект электроснабжения, схема щита автоматизации однолинейная, однолинейная схема щита, схема однолинейная
аксонометрия канальный кондиционер, системы вентиляции, проектирование вентиляции, аксонометрия приточной вентиляции, проектирование систем вентиляции
Проектирование инженерных систем любой сложности для различных объектов в соответствии с требованиями нормативных документов и заказчика: - отопление; - вентиляция; - противодымная вентиляция; - кондиционирования воздуха; Также возможна разработка и оформление пакета документации для выдачи коммерческих предложений по системам вентиляции и кондиционирования для небольших и средних объектов (эскизный проект, подбор вент. оборудования, спецификация оборудования и материалов) на основании схем с замеров. Возможны нечастые выезды на объект и присутствие на планерках и совещаниях (за отдельную плату), выполнение функций технадзора и шеф-монтажника. Опыт работы более 10 лет.Из них 7 лет в государственном проектном институте, 4 года в должности ведущего инженера. Примеры работ вышлю при необходимости. Буду рад сотрудничеству (отопление , водопровод, водоснабжение, проект , проектирование , водопроводные сети, проект по отоплению и водопроводу, проектировщик, инженер ОВ и ВК, инженер ОВиК, проект кондиционирования, фриланс, удаленная работа, строительство , ИД, чертежи) отопление, Котельная, Блочная котельная, спроектировать котельную, проект по Гост. Стадия П раздел ОВ, Стадия Р, проект отопления частного дома. расчет отопления, расчет водоснабжения.
Ещё 23 услуги
Олег Пичугин
5.0
Паспорт проверен
Работает по договору
Олег Пичугин
Москва
 · В сети 2 нед. назад
Разрабатываю проекты по ОВ,ВК,ЭМ, и тд. Опыт 10 лет. Разделы: -Система вентиляция ОВ; -Система дыма удаления; -Кондиционирования; -Электроосвещение; -Канализация Опыт строительства объектов на дели понимание строительства. Имеется своя группа проектировщиков по всем другим разделам проектной и рабочей документации. Сам веду проекты в качестве ГИПа. Согласование со всеми экспертизами и Заказчиками.В профиль
схема приточно-вытяжной вентиляции в кафе, чертежи вытяжной вентиляционной системы, схема вытяжной вентиляции общепита схема, схема системы вытяжной вентиляции кафе, проект вентиляции
исполнительная схема водопровода аксонометрия, аксонометрия системы отопления, аксонометрическая схема водопровода, схема трубопроводов водоснабжения аксонометрия, аксонометрия 3д трубопровода
проект вентиляции в парикмахерской, вентиляция, вентиляция и кондиционирование, система приточно-вытяжной вентиляции в серверной схема, приточно-вытяжная вентиляция чертеж
проектирование вентиляции, системы вентиляции, проектирование систем вентиляции, вентиляционные системы, проект вентиляции
отопление водоснабжение, обвязка котельной, инженерные системы, обвязка бойлера косвенного нагрева с рециркуляцией ваxi, системы водоснабжения
Проектирование системы отопления и водоснабжения
Ещё 7 услуг
Виктория Валентиновна Каширцева
Паспорт проверен
Работает по договору
Виктория Валентиновна Каширцева
Москва и Московская область
 · В сети 2 д. назад
Творческий подход к делу, стремление развиваться, упорство в достижении цели, ответственность, исполнительность, умение работать в коллективе и с коллективом. Оптимизм и жизнелюбие. Владение компьютерными программами: ArchiCAD, AutoCAD, Photoshop, CorelDRAW и др. Опыт проектирования на стадиях П и Р (с нуля до постройки здания) с соблюдением требований ГОСТов и СНиПов. Взаимодействие со смежными разделами: КР, ОВ, ВК, ЭС, СС, ТХ и др. (задание, координация, согласование). Руководство группой архитекторов и дизайнеров. Защита проекта в экспертизе, ответы на замечания экспертизы. Участие в авторском надзоре за строительством проектируемых объектов. Подбор стройматериалов. Английский язык — Pre-Intermediate.В профиль
Опыт более 20 лет архитектором, дизайнером интерьера, ландшафтным архитектором. Над комплексными проектами работаю в качестве Главного архитектора проекта ( ГАП) с организацией работы смежных инженерных проектов.
Скидка 10%
Размер скидки 5-20% зависит от индивидуальных пара...
Работаю в группе с коллегами по отоплению и водоснабжению (ОВ м ВК). Над комплексными проектами работаем вместе.
Ещё 4 услуги
Олег Шатилов
Паспорт проверен
Работает по договору
Инженер-проектировщик систем водоснабжения, водоотведения и пожаротушения (и автоматического пожаротушение). Работаю точно по нормам и с учётом всех требований заказчика. Проекты выполняю качественно, в срок и с вниманием к деталям. В профиль
Ещё 1 услуга
Артэлектрик
Работает по договору
Даёт гарантию
Разрабатываем и согласовываем с управляющими компаниями инженерные проекты разделов: ▫Электроснабжение и электроосвещение ▫Водоснабжение и водоотведение ▫Отопление ▫Вентиляция и Кондиционирование ▫Слаботочные системы У нас есть все необходимые лицензии для согласования проектов СРО, ISO. Для расчета стоимости и запуска проектов в работу можно прислать нам на почту info@artelectrik.com дизайн проект с расстановкой сантехнических приборов, розеток и светильников с выключателями. ▫▫▫▫▫ 🙎‍♂ выезд инженера на объект (при потребности)бесплатно. ✏сроки разработки проектов от 2 до 5 дней. 🔐гарантия согласования проекта. Вернём деньги если не согласуют. 💰оплата любым удобным способом безналичными, наличными, с карты. 📦Доставляем проект бесплатно.В профиль
Разрабатываем инженерные проекты для квартир и нежилых помещений. Имеем сертификаты СРО, ISO. • После разработки проекта, согласовываем его с управляющей компанией бесплатно. • С проектом предоставляем смету на монтажные работы. • Есть услуга срочной разработки проекта за 1 день. • После монтажных работ проводим лабораторные измерения (есть лицензия Ростехнадзора) с выдачей отчета лаборатории. • Чтоб заказать проект или лабораторию – напишите нам запрос на электронную почту или позвоните!
Проектирование отопления и водоснабжения
Проектирование канализации
Проектирование канализации
Проектирование вентиляции и кондиционирования
Проектирование вентиляции и кондиционирования
Проектирование электросетей
Проектирование электросетей
Проектирование электросетей
Разрабатываем инженерные проекты для квартир и нежилых помещений. Имеем сертификаты СРО, ISO. • После разработки проекта, согласовываем его с управляющей компанией бесплатно. • С проектом предоставляем смету на монтажные работы. • Есть услуга срочной разработки проекта за 1 день. • После монтажных работ проводим лабораторные измерения (есть лицензия Ростехнадзора) с выдачей отчета лаборатории. • Чтоб заказать проект или лабораторию – напишите нам запрос на электронную почту или позвоните!
Ещё 5 услуг
Сергей Гордеев
5.0
Паспорт проверен
Сергей Гордеев
Москва
 · В сети 13 ч. назад
По профессии инженер теплоэнергетик. Я предоставляю услуги в сфере прокладки и ремонта инженерных коммуникаций. Благодаря многолетнему опыту работы и знаниям в области теплоэнергетики, я готов предложить всевозможные решения для надежного и комфортного монтажа любой сложности. Также уже 5 лет подряд я не только прокладываю инженерные коммуникации, но и занимаюсь строительством каркасных деревянных домов под ключ с отделкой, ремонтом, инженерными коммуникациями. Более того, я специализируюсь на благоустройстве скважин и колодцев. Эта работа является важным этапом для получения чистой и качественной воды. Сотрудничая со мной, вы можете быть уверены, что работа будет произведена качественно и строго по правилам. Я готов предоставить грамотную консультацию и помощь в выборе наилучших решений в соответствии с пожеланиями каждого клиента. Если вам нужны услуги специалистов в области теплоэнергетики, монтажа инженерных коммуникаций, благоустройства скважин и колодцев, строительства деревянных каркасных домов, обратитесь ко мне! Я всегда готов к сотрудничеству и гарантирую качественный результат. Я считаю, что честность и ответственность – это главное качество в профессии. Поэтому я всегда работаю только по договору с моими клиентами. В нем четко прописаны все условия работ, а также гарантийное и сервисное обслуживание. При необходимости договор можно корректировать в процессе работы. Работаю с бригадой по всей территории Москвы и Московской области. Я работаю только с профессионалами, имеющими большой опыт работы в сфере строительства и монтажа. Мы работаем в частном секторе, многоквартирных домах и новостройках.В профиль
вентиляция бассейнов чертеж, вентиляция бассейна, проект вентиляции бассейна чертежи, проект бассейна, проект бассейна в частном доме чертеж
план плит перекрытия, план перекрытий, план перекрытий абк, план кровли промздания чертеж, монтажная схема плит перекрытия
аксонометрия системы отопления, аксонометрическая схема трубопровода системы отопления, исполнительная аксонометрическая схема водопровода, аксонометрическая схема водопровода, аксонометрическая схема вентиляции
проект бассейна, вентиляция бассейна, бассейн план, проектирование бассейнов, вентиляция бассейнов нормы проектирования
вентиляция бассейна, вентиляция бассейнов чертеж, проект вентиляции бассейна чертежи, проект бассейна, вентиляция бассейнов нормы проектирования
коллектор отопления распределительный схема подключения, распределительная гребенка системы отопления схема, схема распределительной гребенки отопления, распределительный коллектор отопления, схема распределительного узла отопления
системы вентиляции, схема системы вентиляции, аксонометрия приточной вентиляции, вентиляционные системы, схема вентиляции
системы вентиляции, монтаж систем вентиляции, проект вентиляции, проектирование систем вентиляции, вентиляционные системы
план раскладки плит перекрытия, план перекрытий жб плитами, монтажная схема плит перекрытия, схема монолитного балочного перекрытия план, план плит перекрытия 1 этажа
вентиляция бассейна, вентиляция бассейнов нормы проектирования, план, план электрики проект, проект вентиляции бассейна чертежи
план, проектирование вентиляции, проект вентиляции, планировка, проектирование зданий
системы вентиляции, схема подключения обогрева водостоков, схема монтажа греющего кабеля водосточную систему, электрическая схема системы обогрева кровли и водостоков, обогрев кровли греющим кабелем схема подключения
Ещё 9 услуг
СПЕЦПРОЕКТМОНТАЖ
Организация проверена
Работает по договору
СПЕЦПРОЕКТМОНТАЖ
Москва
 · В сети 2 нед. назад
Мы команда профессионалов с опытом работы с 2006 года, поможем вам осуществить технический надзор и реализовать строительный, инженерный проект любой сложности. Все виды ремонтно-отделочных работ. Электромонтажные, сантехнические работы. Технический надзор и приемка квартир. Более 10 лет своя электроизмерительная лаборатория. В профиль
проект системы отопления, инженерные схемы системы отопления, проект водоснабжения, проект вентиляции, проектирование вентиляции
наружные сети газоснабжения чертеж, схема трубопроводов водоснабжения аксонометрия, страница с текстом, чертежи по монтажу газопровода, схема водопровода
схема котельной, проект электроснабжения, проект водоснабжения, проект электрики, проект отопления
схема котельной, котельная схема, устройство котельной, 3д проект котельной, схема котельной частного дома
схема котельной, схема котельной установки, котельная схема, технологическая схема газовой котельной, схема обвязки газовой котельной на 200 квт
схема трубопроводов водоснабжения аксонометрия, аксонометрическая схема системы водоснабжения, аксонометрическая схема водопровода в1, аксонометрическая схема водопровода, аксонометрическая схема водопровода в частном доме
неподвижная опора для газопровода чертеж, неподвижная опора теплотрассы чертеж, крепление трубопроводов, чертеж пайка трубопроводов, узлы крепления чугунной канализации
электроснабжение, проект электроснабжения, однолинейная схема электроснабжения коттеджа, однолинейная схема распределительного щита 380, проект электроснабжения столовой
однолинейная схема электрощита, электроснабжение, однолинейная схема квартирного щитка, проект электроснабжения, однолинейная принципиальная схема электроустановки
проект отопления, план вентиляции, проект системы отопления, проект вентиляции, проект отопления дк
план вентиляции, план системы вентиляции, проектирование вентиляции, проектирование систем вентиляции, проект вентиляции
проект отопления, вентиляция котельной на плане, план вентиляции, проект вентиляции, проект системы отопления
страница с текстом, участок, обследование жилого дома пример отчета, проект пример, улица
однолинейная схема электроснабжения, однолинейные схемы электроснабжения условные обозначения 10кв, проект электроснабжения, электроснабжение, однолинейная схема вру 0.4 кв жилого дома
схема, резервуар вертикальный стальной, ттх резервуара рвс 10000, резервуар с плавающей крышей рвспк-50000
однолинейная электрическая схема ктп, принципиальная однолинейная электрическая схема электроснабжения, – пример однолинейной схемы электроснабжения жилого дома, однолинейная схема электроснабжения частного дома, однолинейная схема электроснабжения
тм 513 траверса, траверса тм 512, ограждение чертеж, чертеж, чертеж металлической колонны кмд
опора подвижная двухрядная а14б 544.000, чертеж крепления кабельного лотка, опорные конструкции для крепления трубопроводов чертежи, опора подвижная а14б 507.000 чертеж, крепление трубопроводов к стене
Проектирование инженерных систем в соответствии с требованиями нормативных документов: - отопление; - котельная; - расчет тепловых нагрузок.
Ещё 5 услуг
Игорь Кузнецов
Паспорт проверен
Даёт гарантию
Расчет, проектирование, исправление отопления Консультации и расчеты по сборке системы отопления своими руками: - Создание модели вашей системы отопления в специализированной программе. - Гидравлический расчет (подбор оборудования, фитингов и труб нужных диаметров и мощности). - Расчет теплопотерь помещений (Для экономичной и достаточной системы отопления) - Расчет необходимых материалов (Четкий список необходимых материалов). - Исправление существующей системы отопления, по фото и схемам. - Расчет теплых полов.В профиль
проектировка систем отопления, проект системы отопления, аксонометрическая схема вентиляции, схема отопления однотрубная 2 этажа, схема подключения
таблица, стали для ножей таблица, таблица по сталям для ножей, углы заточки ножей таблица, таблица совместимости
монтаж теплого пола, монтаж водяного теплого пола, отопление, калькулятор теплого пола, укладка теплого пола
расчет радиаторов отопления, отопление радиаторы, стальные радиаторы отопления, движение теплоносителя в панельном радиаторе, радиаторы отопления ленинградка
прайс лист, таблица, перечень, прайсы, список
расчет теплопотерь, теплотехнический расчет наружной стены, расчет теплообменника калькулятор, теплопотери дома, расчет
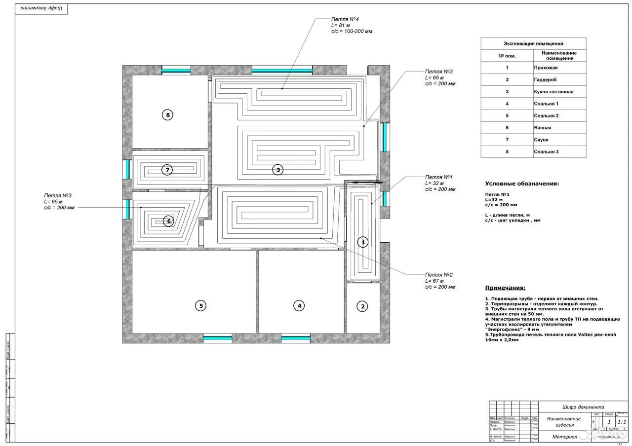
проект теплого пола, план теплого пола, схема теплого пола, чертеж теплого пола водяного, план теплого пола для дизайн проекта
компьютерная byb игра balls, симулятор на юнити, твинс игра, игра для, игра шарики
Консультации и расчеты по сборке системы отопления своими руками: - Создание модели вашей системы отопления в специализированной программе. - Гидравлический расчет (подбор оборудования, фитингов и труб нужных диаметров и мощности). - Расчет теплопотерь помещений (Для экономичной и достаточной системы отопления) - Расчет необходимых материалов (Четкий список необходимых материалов). - Исправление существующей системы отопления, по фото и схемам. - Расчет теплых полов.
КлубСтрой
Работает по договору
Даёт гарантию
КлубСтрой
Москва и Московская область
 · В сети 2 д. назад
Проектирование и монтаж энергоэффективных систем отопления, водоснабжения и канализации с экономикой 30%В профиль
Ещё 1 услуга
Вы часто спрашиваете
Сколько стоит услуга «Проектирование отопления и водоснабжения» в Москве?
Услуга «Проектирование отопления и водоснабжения» может стоить от 100 рублей. Всё зависит от задачи: расскажите, что случилось, и мастера сами расскажут о расценках, а вы выберете подходящий вариант.
Сколько в Москве специалистов, которые оказывают услугу «Проектирование отопления и водоснабжения»?
На Яндекс Исполнителях зарегистрированы 180 проверенных специалистов, оказывающих услугу «Проектирование отопления и водоснабжения».
Клиенты обычно довольны услугой «Проектирование отопления и водоснабжения»?
Заказчики, оставившие отзывы на Яндекс Исполнителях, в среднем оценивают услугу «Проектирование отопления и водоснабжения» на 4.5 из 5.
Как выбрать специалиста в сфере «Проектирование отопления и водоснабжения»?
Можно искать по каталогу, а можно создать заказ — тогда специалисты откликнутся сами. Чтобы выбрать лучшего из лучших, загляните в профиль исполнителя — там есть отзывы и примеры работ.